Bathroom Stall Size

On the other hand a 36 inch or 48 inch wide stall may be used when renovating older buildings if the 60 inch size stall is technically impossible or the number of fixtures are not able to be reduced by the local plumbing code.

Bathroom stall size. If you are looking for bathroom stall size you ve come to the right place. In these page we also have variety of images available. We have 18 images about bathroom stall size including images pictures photos wallpapers and more.

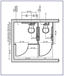
The standard or average width of a non handicap stall is typically 36 wide with the smallest possible width being 30. The minimum depth for a partition stall is 48 inches but the depth can be as much as 78 inches if necessary. Stall size toilet stalls must be 60 inches wide which is the standard bathroom stall dimension in new buildings.

Generally stall doors open inward but for ada accessible stalls the doors should open outward to make it easier for those with accessibility devices to enter and exit. You want to make sure you are measuring exactly where the partitions will be placed because bathrooms are not always exactly square. The interior shower size is at least 36x36 inches.

Partition stalls can have a minimum depth of 48 in most cases or up to 78 depth if needed. Depending on the number of people visiting that public area and space provided for the restroom area they need to adhere to proper bathroom stall dimensions. Constructors in the us make bathroom stalls according to particular standards regarding size and usability.

If done correctly the centers of your toilets decide where your panels go for your non handicap stalls. The minimum interior shower size is 30x30 inches or 900 square inches in which a disc 30 inches in diameter must fit. A small bathroom is typically around 35 40 square feet.

While space is definitely at a premium in a small bathroom decorating this area can be a valuable and exciting interior decorating lesson in maximizing space and utilizing color to liven up the room but also to visually enlarge it. Bathroom stalls that accommodate ada requirements should be at least 60 inches wide 152 cm and 59 inches 150 cm deep on the inside. The distance from the centerline of a toilet and or bidet to any bath fixture wall or.

Not only bathroom stall size you could also find another pics such as shower. Read excerpt above code book. Typically bathroom stalls are floor mounted with an overhead bracing.

While the numbers may vary in accordance with the unique characteristics of your bathroom space a standard toilet stall is 36 inches wide and 60 inches deep. How tall are bathroom stalls. Such as png jpg animated gifs pic art logo black and white transparent etc.

However stall depth can be anywhere between 48 inches to 78 inches as needed. They should also have a 34 or 36 inch 86 91 cm door so that a wheelchair can pass through it.

Source : pinterest.com