Ada Residential Bathroom

Standard ada bathroom dimensions for soap dispensers are 1120mm above bathroom floor.

Ada residential bathroom. These design requirements must be met for most public and commercial bathrooms. Jan 8 2020 explore angel webb s board ada bathroom followed by 661 people on pinterest. Ada suggests at least 17 inches out from the wall with at least 29 inches off the finish floor to the bottom of the sink.

The ada bathroom requirements are indepth and cover every possible requirement for the disabled. See more ideas about ada bathroom bathroom handicap bathroom. This easy to understand infographic gives a good overview of ada bathroom guidelines and regulations for public accommodation bathrooms that is places like hotels event spaces restaurants shops and other businesses that serve the public.

Ada residential bathroom and choose soap dispensers that can be operable without tight pinching or grasping or twisting wrist. While you may not need to adhere to every stipulation provided by the ada bathroom facilities you can glean necessary information for designing your residential handicapped bathroom. If the bathroom you re designing will be in your home you have no obligation to follow ada code.

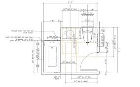
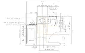
They can also serve as a general guide for safe user friendly accessible design when ada compliance is not required. Having ada bathroom design can be a plus in the resale of your home as well as a special benefit in the event you or a family member should become disabled. Doorways must be a minimum of 32 inches wide to accommodate wheelchairs and walkers.

When you actually know the details of what places are required to provide it s easier to tell when they aren t meeting their obligations. Or for answers to specific questions call the toll free ada information line at 800 514 0301 voice or 800 514 0383 tty. The americans with disabilities act ada of 1990 includes specific guidelines for the construction of accessible or ada compliant bathrooms.

For more information for information about the ada including the revised 2010 ada regulations please visit the department s website www ada gov. Ada standards for accessible design can be downloaded from www ada. The ada is the americans with disabilities act and it attempts to ensure that persons with disabilities will have equal access to and convenience in public spaces via a range of codes and recommendations.

In individual residential dwelling units where a bathroom or a kitchen is substantially altered and at least one other room is altered the requirements of 233 3 1 shall apply to the altered residential dwelling units until the total number of residential dwelling units complies with the minimum number required by 233 3 1 1 and 233 3 1 2.

Source : pinterest.com