Public Bathroom Laws

After all the employees need to go to the bathroom somewhere also right.

Public bathroom laws. States that requires retail establishments that have toilet facilities for their employees to also allow customers to use the facilities if the customer has an inflammatory bowel disease or other medical condition requiring immediate access to a toilet. In the united states no federal law requires that retail businesses provide patrons with bathroom access. Employee restrooms must adhere to both osha and ada guidelines while public bathroom laws and policies dictate they should be ada compliant.

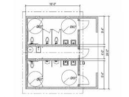
The restroom access act also known as ally s law is legislation passed by several u s. When designing a public restroom keep in mind that the current international plumbing code mandates restroom partitions between urinals. Ally s law is part of the americans with disabilities act of 1990.

A bathroom bill can either be inclusive or exclusive of. Both standard plumbing codes require a specific amount of fixtures in a public restroom determined by the. When it comes to layout public bathroom laws state that all bathrooms should be ada compliant meaning they should be accessible to people with all degrees of abilities.

How much of it is true. Bathroom bills affect access to sex segregated public facilities for an individual based on a determination of their sex as defined in some specific way such as their sex as assigned at birth their sex as listed on their birth certificate or the sex that corresponds to their gender identity. Rules regulations for business public restrooms public access.

Ally s law requires retail establishments to allow people with certain medical conditions such as ibd to access an employee. A bathroom bill is the common name for legislation or a statute that defines access to public toilets by gender or transgender individual. Individual states either create state laws regarding bathroom regulations or adopt one of the standard.

However your state or local law can fill in the gap and require public access. You should research your state and local laws to find out if your business is subject to this requirement. The debate over transgender rights in america often gets reduced to bathroom talk.

So if you can avoid entering a crowded public restroom that can make a significant difference in reducing.

Source : pinterest.com